今年会重工为您提供详细的设备保养常识和各种维修技术,使您足不出户,变身工程师。您也可以报名参加系统的培训,或者致电我们的售后工程师帮助您。
PE保养常识
PEW保养常识
PF保养常识
PFW保养常识
液压圆锥破
cs圆锥破
PY弹簧圆锥破
圆锥破通用常识
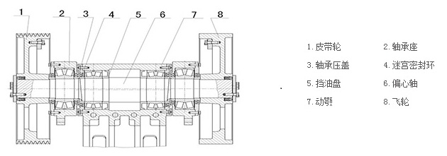
颚式破碎机—安装
-
由于本机在工作时振动量较大,因此机器应安装在钢筋混凝土结构的基础上,基础的重量大致可取为本机器重量的8-10倍,地基的深度要大于该处土地冻结的深度,基础图提供的尺寸为主机和电动机地脚螺栓的相对位置以及相关的其它参数,不作为施工图。安装地脚螺栓处必须留出预留孔,作为二次灌浆的依据。下料槽的高度和大小根据下部的出料方式由现场决定。
-
二次灌浆的水泥牢固后再拧紧地脚螺栓。在这些过程中必须用水平仪测定机器的水平度,水平度的偏差在机架前墙的宽度范围内控制在2毫米以下,机架水平度的检验尤为重要,它可确保进料口位置不至因偏斜而使破碎机在工作时发生单边进料等现象,避免因负荷不均而损坏设备。
-
安装电动机时除检查与主机的距离外,还应检查电动机皮带轮与主机槽轮中心平行相对应,以确保所有的三角皮带有效一致地工作。
-
排料口尺寸大小应按所需产品的粒度和处理能力进行调整,在调整排料口时应先松开拉紧弹簧,待调整好后,再适当调整弹簧的胀紧程度,以防肘板在工作时脱落,详见调整部件。
颚式破碎机的操作
空载试车
-
连续运转2小时,轴承温升不超过30℃。
-
所有紧固件应牢固,无松动现象。
-
飞、槽轮运转平稳。
-
所有磨擦部位无擦伤,掉屑和研磨现象,无不正常的响声。
-
排料口调整范围应符合要求。
带载试车
当空载试车合格后方可加料进行带载试车。
-
破碎机不得有周期性或显著的冲击声。
-
最大给料粒度应符合设计规定。
-
连续运转8h,轴承温升不得超过30°C。
破碎机启动前的准备工作
-
检查轴承的润滑;肘板与动颚、调整座上肘板垫的接触等情况是否良好,肘板与肘板垫接触处是否有足够的润滑脂
-
检查所有紧固件是否坚固。
-
检查飞、槽轮配重中心位置是否正确,槽轮配重中心应通过主轴中心孔与主轴偏心孔相对应180度成为一条直线。
-
检查传动皮带是否安装正确和情况良好,若发现皮带破损应及时更换,当皮带或槽轮上有油污时应用干净抹布及时擦净。
-
检查防护装置是否良好,若发现防护装置有不安全现象,应及时排除。
-
检查破碎腔内有无物料或其它杂物,若有时应清除干净。
-
检查调整垫片是否安装正确和压紧。
破碎机的启动
-
经检查、证明机器与传动部件情况正常后方可启动。
-
本机只准在无负荷情况下启动。
-
启动后若发现不正常现象时应立即停止启动,必须查明原因排除异常后方可再次启动破碎机。
破碎机的使用
-
破碎机正常运转后方可开始投料。
-
应将破碎物料均匀地加入破碎腔内,避免侧面加料或堆满加料,以防止单边过载、负荷突变或阻塞。
-
停车前应首先停止加料,待破碎腔内的破碎物料全部排出后,方可关闭电动机。
-
在破碎时若因破碎腔内物料阻塞而造成停滞时,应立即关闭电动机,必须将物料清除后方可再启动破碎机。
-
固定颚板和活动颚板当一端磨损后,可上、下调头使用。
-
破碎机使用一定时间后,应重新紧固所有紧固件。
颚式破碎机的维修-润滑
-
为保障机器的正常运转和延长使用寿命,应定期注油润滑。
-
加入轴承座内的润滑脂应为容积的50%-70%,每3-6个月更换一次。在换润滑脂时应用洁净的汽油或煤油仔细清洗滚柱轴承的滚道等部位,清洗时应打开轴承座下的放油孔。
-
本机采用润滑脂应根据机器使用的地区、气候等条件决定,一般可采用钙基,钠基或钙钠基润滑脂,在润滑脂较干燥时,可用稀油与润滑脂调和后使用。
-
肘板与肘板垫之间只需在装配或检修时,在其接合面处加上适量的润滑脂即可。
-
润滑部件系用来把润滑油方便可靠的注入润滑点的机构,润滑时间以图中所示时间为准。(本机共4个润滑点,分别为四只轴承处)。
颚式破碎机—故障和排除方法
-
飞轮旋转但是动颚停止转动
-
破碎板抖动并产生撞击声
-
推力板支座中产生撞击声或其他不正常声音
-
飞轮松动
-
破碎产品粒度增大
-
破碎腔堵塞,主电机的电流高于正常运转电流
-
轴承温度过高
颚式破碎机—日常维护须知
- 检查颚头是否紧固、是否磨损 [每天]
- 检查边护板是否紧固、是否磨损 [每天]
- 检查卸料嘴确保附近没有碎片、钢铁等杂物 [每天]
- 检查所有的螺栓是否紧固 [每天]
- 检查肘板 [每天]
- 检查肘板是否有裂缝 [每天]
- 检查肘板弹簧,确保没有损坏并且调整平衡 [每天]
- 检查空机运转声音,如果有杂音请紧固肘板弹簧 [每天]
- 检查飞轮是否有裂缝 [每周]
- 每天检查机器停机时间,每天记录下来检查下降趋势 [每周]
- 定期检查轴承温度,记录下来并且观看其上升趋势 [每周]
- 检查所有皮带,确保其没有磨损 [每周]
日常维护
欧版颚式破碎机—安装
-
机器需安装在避雨的地方,不可露天安装。
-
电机需安装在破碎机的后方,旋转方向必须按照要求的方向,不得反向。
-
由于本机工作时振动较大,故需将机器安装在混凝土基础上。为了减少振动、噪音以及对附近建筑物基础的影响,在破碎机和混凝土基础中间垫以硬木垫板、橡胶板或其它减振材料。
-
基础高度、深度和面积应按土质条件,当地气候等因素具体确定,但混凝土下的土层必须夯实,寒冷区的基础深度必须大于冻层。
-
基础的排料槽要铺设一层金属板,并具有足够的倾斜角度(最好大于50度),以免阻碍破碎后的产品顺利排出。
调整与试运转—调整
-
本机试机前需要调整排料口的大小及肘板与肘板座的接触情况(看接触是否完全),排料口的大小的调整方式有两种
①楔块式调整方式: 调整时应先松开楔块拉紧螺杆及锁紧螺栓和弹簧,然后通过液压缸(调整螺栓)推动调整楔块,进而推动调整座及肘板,实现调整排料口大小的目的,调试结束后锁紧液压缸(调整螺栓),楔块拉紧螺杆、滑块锁紧螺栓及弹簧。楔块液压调整方式的液压站结构图和原理图见附录
②垫片式调整方式: 当调整排料口时,首先适度拧松拉紧部件的拉杆螺母,松开弹簧,然后再松开挡块螺栓,松开挡块,拧紧顶丝螺栓(把液压起顶机头部装入顶头,旋入机架后的螺母内,将液压起顶机的出油阀打开,扳动手柄),顶丝螺栓(顶头)向前推动调整座,达到一定的开口度时,取出调整垫片,以达到增大排料口的需要;若放入调整垫片,则可达到减小排料口的需要。在达到用户所需的排料口尺寸后,首先松开顶丝螺栓(可打开液压起顶机的进油阀,扳动手柄,松开顶头)调整座在动颚部件自重的推力作用下,调整座及调整垫片组向机架后墙靠拢,压实,注意顶丝螺栓(顶头)松开程度应达到调整座向后墙靠拢,压实后而不相接触,再拧紧挡块螺栓,将挡块与调整座与机架牢固,适度拧紧拉杆螺母收紧弹簧,即完成调整排料口的工作。
-
试机前必须确认各连接螺栓已拧紧,确认各活动部位已润滑,润滑站加油口位置(见右图),润滑方式采用干油集中润滑站,干油集中润滑站的结构图见附录,润滑油脂用通用锂基润滑脂或复合钙基润滑脂。
-
先用人力搬动皮带轮,确认运动不受阻碍,方可进行空车试验。
调整与试运转—空载试车
-
连续运转2小时,轴承温升不超过30℃。
-
最大给料尺寸应符合设计规定。
-
连续运转8小时,轴承温升不超过35℃。
-
调整楔块与机架后箱间无明显窜动。
使用与维护
启动前的准备工作
-
仔细检查轴承的润滑情况是否良好,肘板的连接处是否有足够的润滑油。
-
仔细检查所有紧固件是否完全拧紧。
-
仔细检查传动皮带是否良好,若发现有破损现象时,应及时更换当皮带或皮带轮上有油污时,应用布将其擦净。
-
检查防护装置是否良好,发现有不安全现象时,应及时排除。
-
检查破碎腔内有无矿石或杂物。若有矿石或杂物时,则必须清理干净,以确保破碎机空载启动。
启动
-
经检查,证明机器各部件情况正常,方可启动。
-
本机仅允许在无载荷情况下启动。
-
启动时,必须用铃或信号事先预告。
-
启动后,如发现有不正常现象时,应立即停止运转,待查明和排除不正常情况后,方可重新起动破碎机。
使用
-
破碎机正常运转后,方可开始喂料。
-
正常工作情况时,轴承的温升不应超过30℃,最高温度不得超过70℃,超过上述温度时,应立即停机,查明原因并加以消除。
-
停机前,应先停止喂料,待破碎腔内物料完全排出后,方可关闭电动机。。
-
检查传动皮带是否安装正确和情况良好,若发现皮带破损应及时更换,当皮带或槽轮上有油污时应用干净抹布及时擦净。
-
破碎时,如因破碎腔内物料阻塞而造成停机,应立即关闭电动机,将物料排出后,方可再启动。
-
破碎机使用一段时间后,应将所有固定部位重新锁紧。
-
肘板下方应注意经常清理,保持肘板与动颚间不夹塞杂物。
润滑
-
经常注意并及时做好摩擦面的润滑工作,确保机器正常运转和延长设备的使用寿命。
-
本机所采用的润滑脂为通用锂基润滑脂或复合钙基润滑脂。
-
加入轴承座内的润滑脂为其空间容积的50%左右,每九个班补充加注一次,每3-6个月更换一次。换油时应用洁净的汽油或煤油清洗滚珠轴承的滚道。
-
肘板与肘板座之间应注入适量的润滑脂。
拆卸
①破碎机正常运转后方可开始投料。
②偏心轴部分拆卸时可参考所附的简图进行拆卸(见下图)

安全技术
-
本机操作人员,须经安全技术教育,方可操作。
-
严禁在运转过程中从上面朝机器内窥测。
-
严禁在运转时对机器做任何调整、清理或检修工作。
-
严禁在设备运转时用手直接在进料口或破碎腔内搬动和挪动矿石。
-
电气设备应接地,电线应可靠绝缘,并装在软管内。
故障和排除方法:
- 主机突然停机(俗称:闷车)
- 主机槽轮、动颚运转正常,但破碎工作停止
- 产量达不到出厂标准
- 活动与固定颚板工作时有跳动或撞击声
- 肘板断裂
- 弹簧断裂
- 调整座断裂
- 偏心轴弯曲或断裂
- 动颚断裂
- 机架轴承座或动颚内温升过高
- 飞槽轮发生轴向左右摆动
- 机架开裂
- 机架后部产生敲击声
- 机架跳动严重
反击式破碎机—安装
-
安装施工人员应熟悉本产品的结构、性能和技术要求,了解必要的操作规范,并事先制订合适的安装工艺规程。
-
安装现场需有足够的起吊能力的吊装设备。
-
设备安装前,设备基础的预留操作空间和地脚螺栓预留孔的坐标位置应认真检查,并应符合设备总图及有关基础设计资料的规定。设备的纵、横基础坐标(纵横轴线)分别是设备的中心线和转子的轴心线。
-
安装
-
破碎机必须安装在钢筋混凝土基础上,基础高度、深度和面积大小应根据当地土质条件,单进行计算,本机可安装于钢架上。
-
基面要求平直,机体与基础的相交面不得漏灰,地脚螺栓应反复紧固。
-
基础下部应有足够的空间,以便安装运送设备和设备检修。
-
设备与基础之间应填有吸震材料。
-
本机电机位置可左、右布置,常规产品在主机的右侧,如有变化需在订货时告知供货方。
-
-
安装、更换或调整板锤时,应注意板锤的称重。对称位置板锤重量差应控制到最小状态,确保转子运转平衡。
-
在第一次起动之前和和较长时间运行后,必须检查反击板下部边缘与板锤上部的间隙。确保前反击架与板锤的间隙是后反击架与板锤的间隙宽度的二倍。
出厂时间隙调整为:
前反击架衬板与板锤间隙为60mm 后反击架衬板与板锤间隙为30mm
-
避免反击式破碎机受到外来硬物的损伤,在机壳上需装进料斗,同样,破碎后物料到皮带输送机的溜槽需安装在破碎机出料口的下部。
反击式破碎机的调试
-
试运行准备工作
(1) 检查并确认破碎机体内没有其它物品和物料。
(2) 检查所有紧固零件是否锁牢固。
(3) 检查各检修门是否密封。各门在关闭前应在其外沿四周抹一层较厚的润滑油脂,使其关闭后有较好的气密性。
-
检查轴承内是否有适量的油脂。
-
检查各个活动销轴处是否有堵、卡现象,并涂上适量润滑脂。
-
检查反击衬板与转子间的间隙是否达到要求。
-
空负荷运转:
(1) 在起动电机试车前,可先用人工盘动,确认无异常声响后再空负荷试车。
(2) 空负荷试车必须遵循先点动后连续的原则,确认无异常声响后再空负荷试车。
(3) 空运转时要求机器运转平稳,无异常震动及响声。空运转试车连续时间不少于2小时,轴承温度稳定,其升温不超过30℃。
-
负荷试运转:机器空负荷试车情况正常后,方可进行负荷试运转。负荷试运转的连续时间不少于4小时。
(1) 给料:本机必须采用送料装置均匀连续给料,并使分布于转子工作部分的全长上,这样既保障生产能力,又可避免堵料和闷车现象,延长机器使用寿命。送料装置电器控制系统应与破碎机的电器控制系统连锁,当破碎机超负荷时,输送皮带便可自动切断电源,停止给料。
(2) 破碎机停机:每次停机前应先停止进料工作,待破碎腔内的物料完全破碎后,方可切断电源停机。
(3) 负荷试运转完成后,应对所有联接螺栓、地脚螺栓的紧固情况、板锤的定位情况、衬板固定情况进行检查,并进行必要的调整。
反击破碎机的操作规程
-
本机器在每班开机前,应内外检查各个旋转部件的紧固螺栓有无松动现象。一旦发现应立即予以排除。机内螺栓应每周检查一次。
-
机器应均匀给料,严禁金属异物进入机内。操作人员听到金属敲击声或看到电流表显示超负荷等现象时,应立即停机,待机器安全停机后,排除异物后检查各有关转动零件有无损坏。确认正常后,才可以继续开机给料。
-
本机只能在空载状态下启动,当物料全部破碎并排出机外时,才允许停机。
维护与保养
-
新机器投入运行后,每次工作完毕时必须对机器进行详细的检查。大约运行两周后,只需每月对机器进行一次详细的检查。设备的电机、润滑每周做一次详细的检查。检查的内容应包括固定部位的紧固情况,皮带传动、轴承密封、电器开关的情况。
-
必须每周对机器的主要零件如板锤、反击衬板、衬板的磨损情况进行检查,并结合检修周期建立定期的维护和更换制度。
-
转子和反击衬板的间隙调整
转子在运转时,转子于反击衬板之间的间隙是不能被调整。如物料成块的滞留在反击板和机壳之间,建议在重新调整间隙之前稍微抬起反击架。这样成块的进料会变松,反击架容易调整。如果抬起反击架不够充足,可在放松的拉杆上轻拍(用一块木板保护)。转子和反击衬板间的间隙由机器的调整装置来完成。首先松开螺杆套,然后再转动长螺母,此时,拉杆会沿箭头方向运动,调整好后再将螺杆套拧紧。间隙大小情况可通过打开机架左右的侧门进行观察,用户须特别注意,以上这些工作必须在停机后进行,以免发生意外。

更换易损件
板锤
-
更换易损件时,首先打开后上架。本机采用棘轮翻盖装置。使用时,先将后上架与中箱体上联结螺栓卸下,然后二人两边同时操作棘轮翻盖装置上的手柄,将后上架徐徐打开,在此同时,可利用机架上方的吊挂装置吊住后上架。转动棘轮上的换向手柄,重复上述过程,既合上后上架。
-
板锤磨损到一定程度时应及时调整或更换以避免紧固件与其他部件的损伤。
-
用棘轮翻盖装置将后上架打开。用手转动转子,将需调整或更换的板锤转至检修门处,然后固定转子。拆去板锤定位零件:首先将定位件转至适当位置,再将压紧块沿轴向拆出。然后将板锤沿轴向从检修门处推出,或从机架中间吊出。拆卸时需用手锤在板锤上轻轻敲打。
-
安装板锤时,颠倒上述步骤即可。但须注意重量近似相同的板锤安装在相对位置,以避免工作时不平衡。

反击衬板
打开后上架,拆除固定反击衬板用的开口销、开槽螺母、螺栓,即可将磨损后的反击衬板更换。如果安装新的反击衬板,颠倒上述步骤即可。
调整衬板均需打开后上架,所有衬板允许在磨损较重的地域和磨损较轻的地域互换。当一件衬板仅仅在一边被磨损尽,它可转动90°或180°继续使用。发现有物料积压在反击
架上面卡住反击架时,可利用垫圈及螺栓垫在反击架侧面的衬板后面以减小其间隙,以避免此现象的出现。

进料口底部与板锤之间间隙
在进料口底部有一方钢,当下料处一角磨损时可旋转90°,来控制未经破碎骨料的下料。调整时,需卸下机架两侧的方盖,然后抽出方钢,旋转后再装入。

润滑
-
经常检查轴承座密封是否良好。
-
每工作八个小时轴承内应加注润滑脂一次,主轴两端的轴承采用二硫化钼脂(3号锂基脂)润滑。
-
每三个月必须更换润滑脂(油)一次及更换油毛毡。换油前应用洁净的汽油或煤油仔细的冲洗轴承,加入轴承内的润滑脂为轴承空腔容积的50~70%。
-
在正常情况下,轴承温升不应超过35℃,温度超过70℃为出现异常,应立即停车,查明原因,排除故障后,方可重新启动。

注:不同型号机器润滑位置略有不同(均在轴承座上),请用户以收到的机器上标示的润滑位置为准。
可能发生的故障和消除方法:
振动量骤然增加
-
故障原因
更换或装配板锤时,板锤未称重,未作平衡
-
消除方法
重新安装板锤,转子进行平衡校正
出料过大
-
故障原因
反击衬板或板锤磨损过多,引起间隙过大
-
消除方法
通过调整前后反击架间隙或更换衬板和板锤
机器内部产生敲击声
-
故障原因
1、不能破碎的物料进入机器内部;
2、衬板紧固件松弛,板锤撞击在衬板上;
3、板锤或其他零件断裂。
-
消除方法
1、停车后清理破碎腔;
2、检查衬板的紧固情况及板锤与衬板之间间隙;
3、更换断裂件。
轴承温度过高
-
故障原因
1、润滑脂过多或不足
2、润滑脂脏污;
3、轴承损坏。
-
消除方法
1、检查润滑脂是否适量;
2、清洗轴承后更换润滑脂;
3、更换轴承。
安全注意事项
-
机器运转时,工作人员不能站立在惯性力作用线的范围内,电器开关的安装也要避开这个位置。
-
机器运转时,严禁打开检查门观察机器内情况,严禁进行任何调整、清理、检修等工作,以免发生危险。
-
严禁向机器内投入不能破碎的物料,以免损坏机器。
-
机器在检修时,首先应切断电源。
-
在机器运转中,严禁机器超负荷工作。
-
电器设备应接地,电线应可靠绝缘,并装在蛇皮管内
-
启闭上盖系统时,严禁在上盖运动的两个方向有人存在,开启结束时,必须在支臂下部垫好垫块,并保障牢固可靠安全后方可进行其他工作。
欧版反击式破碎机—安装
-
安装施工人员应熟悉本产品的结构、性能和技术要求,了解必要的操作规范,并事先制订合适的安装工艺规程。
-
安装现场需有足够的起吊能力的吊装设备。
-
设备安装前,设备基础的预留操作空间和地脚螺栓预留孔的坐标位置应认真检查,并应符合设备总图及有关基础设计资料的规定。设备的纵、横基础坐标(纵横轴线)分别是设备的中心线和转子的轴心线。各预留空间和地脚螺栓预留孔的中心位置偏差不得大于±lOmm。
-
机体安装
(1) 破碎机必须安装在钢筋混凝土基础上,基础高度、深度和面积大小应按当地土质条件,单进行计算,机器的安装尺寸可参照基础图。本机也可安装于钢架上。
(2) 基面要求平直,机体与基础的相交面不得漏灰,地脚螺栓应反复紧固。
(3) 基础下部应有足够的空间,以便安装输送设备和设备检修。
(4) 设备与基础之间应填有吸振材料。
(5) 本机电机位置可左右布置,常规产品在主机的右侧,如有变化需在订货时告知供货方。
-
安装、更换或调整板锤时,应注意板锤的称重。对称位置板锤重量差应控制到最小状态。
-
在第一次起动之前和较长时间运行后,须检查反击板下部边缘与板锤上部的间隙。确保最后的一个反击架与板锤的间隙。
出厂时间隙调整为:
欧版三腔反击破: 第一反击架与板锤间隙为120mm。 第二反击架与板锤间隙为60mm。 第三反击架与板锤间隙为40mm。
欧版两腔反击破:第一反击架与板锤间隙为240-300mm。 第二反击架与板锤间隙为80mm。
正确的间隙是保障设备安全的运行。
-
为避免反击式破碎机受到外来硬物的损伤,在机壳上需装进料斗,同样,破碎后物料到皮带输送机的溜槽需安装在破碎机出料口的下部。
欧版反击式破碎机—调试
试运行准备工作
-
检查并确认破碎机体内没有其它异物和物料。
-
检查所有紧固零件是否锁牢固。
-
检查各检修门是否密封。
-
检查轴承内加有适量的油脂。
-
检查各活动销轴处是否有卡住现象,并涂上适量润滑油脂。
-
检查反击衬板与转子间的间隙是否达到要求。
空负荷运转
-
在起动电动机试车前,可先用人工盘动,确认无异常声响后再空负荷启动。
-
空负荷试车必须遵循先点动后连续的原则,确认无异常声响后再空负荷试车。
-
空机运转时要求机器运转平稳,无异常振动及响声。空运转试车连续时间不少于2小时,轴承温度稳定,正常温升应小于35℃。
负荷试运转
-
给料:本机必须采用送料装置均匀连续给料,并待碎料分布于转子工作部分的全长上,这样即保障生产能力,又可避免堵料和闷车现象、延长机器使用寿命。送料装置电气控制系统应与破碎机的电气控制系统连锁,当破碎机超负荷时,输送皮带便可自动切断电源,停止给料。
-
破碎机停机:每次停机前应先停止迸料工作,待破碎腔内的物料完全破碎排出后,方可切断电源停机。
-
负荷试运转完成后,应对所有联接螺栓、地脚螺栓的紧固情况、板锤的定位情况、衬板固定情况进行检查,并进行必要的调整。
欧版反击式破碎机—维护与保养
-
新机器投入运行后,每次工作完毕时必须对机器进行详细的检查。大约运转两周后,只需每月对机器进行一次详细的检查。设备的电机、润滑需每周作一次详细的检查。检查的内容应包括固定部位的紧固情况,皮带传动、轴承密封、电器开关的情况。
-
必须每周对机器的主要零件如板锤、反击衬板、衬板的磨损情况进行检查,并结合检修周期建立定期的维修和更换制度。。
-
转子和反击衬板的间隙调整当转子在运转时,转子与反击衬板之间的间隙不能有效地被调整。如物料成块地滞留在反击板与机壳之间,建议再重新调整间隙之间稍微抬起反击架,这样成块的进料会变松,反击架容易调整。如果抬起反击架不够充足,可在放松的拉杆上轻拍(用一块木板保护)。转子和第一、二反击板间的间隙由机械的调整装置来完成(如下图)。首先松开防护螺母套1,用顶丝顶起联接板,然后再松开锁紧螺母4,转动调整套3,此时,拉杆会沿上下方向运动,调整好后再将锁紧螺母4拧紧。松开顶丝放下联接板2,并卡住调整螺母3,拧紧防护螺母1。间隙大小情况可通过打开机架上侧墙门进行观察,用户必须特别注意,以上这些工作必须在停机后进行,以免发生意外。

更换易损件
更换易损件时,首先打开后上架。本机采用丝杆或液压翻盖装置。使用时,先将机架之间的联接螺栓卸下,然后二人两边同时操作翻盖装置上的手柄,将后上机架徐徐打开,打开至图示位置(如下图)即结束,更换易损件后,再次利用翻盖装置,重复上述过程,即合上后上架

更换易损件—板锤
板锤磨损到一定的程度时应及时调整或更换,以避免紧固件与其它部件的损伤。板锤的调整如下图左所示。

用丝杆或液压翻盖装置将后上架打开。用手转动转子,将需调整或更换的板锤转至检修门处,然后用安全装置固定转子。拆去板锤定位零件:首先将定位挡板去掉,松开螺栓组,依次去掉序号2、3,最后利用锤头两端的孔吊出锤头,调头后如上图(d)位置,再将锤头依次压紧。
特别注意重量近似相同的板锤安装在相对位置,以避免工作时不平衡。严重的振动将大大影响轴承的寿命。设备无法正常使用。
更换易损件—反击衬板
1、打开后上机架,拆除固定反击衬板用的螺母、螺栓,即可将磨损后的反击衬板更换。如果安装新的反击衬板,颠倒上述步骤即可。
2、调整衬板均需打开后上架,所有衬板允许在磨损较重的地域和磨损较轻的地域互换。当一件衬板仅仅在一边被磨损尽,它可转动90°或180°继续使用发现有物料积压在反击架上面卡住反击架时,可利用垫圈及螺栓垫在反击架侧面的衬板后面以及减小其间隙,避免此现象的出现。
胀套联接的拆装和拧紧检查
本设备电机轮、大皮带轮、转子体的固定均采用无键胀套联接。
胀套在拆卸时应注意在圆周上以对角交叉的顺序分几步拧松锁紧螺钉,但不 要全部拧出,取下螺钉和垫圈,并以螺纹较大的螺栓旋入拆卸螺孔中,轻敲所有 螺钉头部,使胀套松动拉出。
胀套在装配之前所有相关零件表面必须清洗干净,并稍稍涂油。锁紧螺钉必 须涂上足够的油脂,注意所有油脂不得含有二硫化钼添加剂。此后,将胀套装进 轴和轮之间,轻轻拧紧锁紧螺钉,再用槽轮装配工具,将槽轮顶紧在正确位置, 最后用力矩扳手在圆周上以对角交叉的顺序均匀的分三部(分别以1/3MA,l/2MA和MA)拧紧螺钉,直至每个螺钉都达到规定的拧紧力矩MA。在使用力矩扳手之前,务必检查或调定所需的拧紧力矩MA。完成后在胀套外露表面及螺钉头部涂上防锈油脂。
各处胀套所需的拧紧力矩表:
| 电机轮胀套 MA(N.m) |
主轴轮胀套 MA(N.m) |
转子体胀套 MA(N.m) |
|
| PFC1210 | 83 | 230 | 355 |
| PFC1214 | 145 | 230 | 355 |
| PFC1315 | 145 | 355 | 485 |
| PFC1318 | 145 | 355 | 485 |
润滑
- 经常注意和及时做好摩擦面的润滑工作。
- 本机使用的润滑油应根据使用地的气候条件来决定。
- 每工作八小时轴承内应加注润滑脂一次,主轴两端的轴承采用二硫化钼脂(3号锂基脂)润滑。
- 每三个月更换润滑油一次。换油前应用洁净的汽油或煤油仔细地冲洗轴承,加入轴承内的润滑脂为轴承空腔容积的50~70%。
- 在正常情况下,轴承正常温度在35℃左右,温度超过70℃为出现异常,应立即停车,查明原因,排除故障后,方可重新启动。
可能发生的故障和消除方法
振动量骤然增加
-
故障原因
更换或装配板锤时,转子未很好地平衡。
-
消除方法
重新安装板锤,转子进行平衡校正。
出料过大
-
故障原因
由于衬板或板锤磨损过多,引起间隙过大。
-
消除方法
通过调整前后反击架间隙或更换衬板和板锤。
机器内部产生敲击声
-
故障原因
不能破碎的物料进入机器内部;
衬板紧固件松弛,板锤撞击在衬板上;
锤或其他零件断裂。
-
消除方法
停车后清理破碎腔;
检查衬板的紧固情况及板锤与衬板之间隙;
更换断裂件。
轴承温度过高
-
故障原因
润滑脂过多或不足;
润滑脂脏污
轴承损坏。
-
消除方法
检查润滑脂是否适量;
清洗轴承后更换润滑脂;
更换轴承。
操作规程
- 本机器在每班开机前,应内外检查各个旋转部件的紧固螺栓有无松动现象。一旦发现应即予排除。机内螺栓应每周检查一次。
-
机器应均匀给料,严禁金属异物进入机内。
操作人员听到金属敲击声或电流表显示超负荷等现象时,应立即停机,待机器安全停机后,排除异物并检查各有关转动零部件有无损坏。确认正常后,才可以继续开机给料。
- 本机只能在空载状态下启动,当物料全部破碎并排出机外时,才允许停机。使用单位应根据本说明书的内容,结合常规要求,自行编制本机的操作规程和维修规程。
破碎机必须避免的事项
- 机器运转时,工作人员不能站立在惯性力作用线的范围内,电器开关的安装也要避开这个位置。
- 机器运转时,严禁打开检查门观察机器内情况,严禁进行任何调整,清理检修等工作,以免发生危险。
- 严禁过铁,请在破碎机前加金属探测器和除铁器。
- 机器在检修时,首先应切断电源。
- 破碎机运行电流或功率不能超过额定电流或功率的85%-90%。
- 电器设备应接地,电线应可靠绝缘,并装在蛇皮管内。
- 启闭上机架盖时,严禁在上机架盖运动的两个方向有人存在,开启结束时,必须在起臂下部垫好垫块,并保障牢固可靠安全后方可进行其它工作。
液压圆锥破碎机的圆锥安装
- 液压圆锥破碎机安装圆锥之前,应在近处设置一个牢固、较高一点的木架子作为安装破碎圆锥用。
- 清除掉涂在轴和球面上的保护油层,并用风吹净润滑油孔与油沟。
- 在液压圆锥破碎机锥轴表面涂一层黄干油,球面上涂一层稀油。
- 液压圆锥破碎机圆锥安装时,要轻轻放入空偏心轴中,稳稳地使球面与碗形轴承之碗形瓦接触,避免损坏球形圈。
破碎机排矿口检测技术
- 破碎机排矿口检测是选矿测试技术的内容之一,检测目的在于及时调节破碎机排矿口大小,有效控制成品粒度。检测破碎机排矿口的方法有直接法和间接法两种。直接检测法是使用最早且最普遍的检测方法,它是将铅球(或铅块、铅柱)投入空载的破碎机中,丈量破碎机排出的被压挤的铅球(或铅块、铅柱)的尺寸,以鉴定排矿口的大小。
- 间接检测法又有一般液压检测法和电感液压检测法两种。一般液压检测法是在排矿口液压装置的油位指示器上设置一个标尺,油位实际上反映了破碎机可动锥的位置,直接显示了排矿口的大小;电感液压检测法依赖电动液压控制装置中的电子控制系统,即设在主轴下的电感式间隙丈量器或设在主轴顶上的自动同步传感器,自动测定和显示主轴位置和排矿口的大小。间隙检测法能连续检测排矿口的瞬时大小,便于及时调节排矿口和实现操纵自动化。但这种方法只能用于装有排矿口液压调节系统和电动液压控制系统的破碎机,主要应用于新型破碎机,如今年会破碎机HPT系列液压圆锥破、HST系列液压圆锥破。
液压圆锥破工作时的注意事项
- 矿石必须给在分配盘的中间,不准许将矿石直接给入破碎腔内。这样可以防止破碎机过载,使衬板磨损不均。正确的给矿条件是:矿石经分配盘均匀的分散在破碎腔内,给入的矿石不能高出轧臼壁的水平。
- 液压圆锥破的最大给矿尺寸≤85%给矿口尺寸,否则会导致圆锥破产量的降低和零件的损坏。
- 液压圆锥破不准负荷起动,负荷起动会造成事故。
- 停车时,必须先停止给矿,并让已进入破碎腔的矿石破碎排出后,使圆锥破停车。
- 液压圆锥破工作时应经常检查锁紧系统的压力及液压站的工作情况,发现问题及时处理。
CS圆锥破的规范性安装守则
CS圆锥破基础的安装
-
CS圆锥破必须安装在稳固的钢筋混凝土基础上,基础的深度根据地质条件决定
-
为避免破碎后的矿石堆积,基础下部必须有足够的空间,安装运输设备。
-
为了基础不受损坏,在基础上部必须覆盖护板。
CS圆锥破机架的安装
-
安装CS圆锥破机架时,应保持严格的垂直性和水平性,可在底座的环形加工面上用水平仪及悬锤检查底座的中心线。
-
用调整楔块调整好底座的水平后,将地脚螺钉拧紧,进行第二次灌浆。
-
当二次灌浆层硬化后,以CS圆锥破底座下再取出调整楔块,并用水泥充填空隙,再按机架的安装。
CS圆锥破传动轴的安装
-
安装传动轴时,应在底座与传动轴架的凸缘法兰间垫上调整垫片。
-
传动轴装入后,用样板检查与传动齿轮有关的尺寸。
-
传动齿轮轴向移动量应为0.4-0.6mm。
-
拆卸传动轴时,可利用传动轴架法兰上。
CS圆锥破空偏心轴的安装
空偏心轴安装前,先将垫片装在底盖上用吊钩将底盖在机架下端,然后再用吊钩将下圆板和圆板依次序装在底盖上,并使下圆板的凸起和底盖的凹处卡好。
CS系列圆锥破碎机润滑系统
- 润滑油路分两路进入机器,一条由机器下部油孔进入机器后又分三路分别到达空偏心轴内外表面,主轴中间油孔到达碗型轴承经过孔道润滑大小齿轮,然后由小伞齿轮下部的回油孔回油;另一条由传动轴架上的孔进油,润滑传动轴承,其回油也是经过小伞齿轮下部的回油孔及防尘盖上的回油孔回油。回油由单管路流回油箱。
- 为了使机器正常工作,在冬季厂房内没有取暖设备的条件下,油箱中没有电阻加热器,以提高油温;在夏季油温增高时,可使油通过换热器进行润滑。
- 进入换热器的水压一般为2-3kgf/cm2,进入换向器的水温则必须小于等于28°,水必须是清洁的。
- 油压必须达到0.8-1.5kgf/cm2,以及润滑油达到润滑点后才能启动主电机。油压低于0.8kgf/cm2时,电器控制系统即应发出信号,并立即停止给料,此时必须要查明原因进行处理。
- 由于长期工作,润滑油温度可能升高,但不得高于60°,否则应该迅速停止机器工作,并查明原因清除故障。
- 冬季机器在停止若干小时后,必须采取适当方法制止油箱及油管内的油冻结,最好是定期空转,必要时利用油箱内的电阻加热器。
- 应经常保持过滤器的清洁,如工作时发现给油量少,可能是油网堵塞,应及时停车修理。
- 油箱的检查、清洗和修理每年不少于一次。
- 清洗润滑系统的导管时,应对可能沉淀物和脏污的地方进行检查,如管子的弯曲处,并根据检查情况确定清洗整个油的导管或者清洗局部。
- 更换新油后,工作一昼夜至五昼夜,将过滤器装置进行清洗,以及在机器每次检修时进行修理。
- 油泵的检查一年不少于一次,压力表等半年检查一次。
- 在润滑系统不工作时,盛油器内的油位应达到上限的部位,当润滑系统工作时,盛油器的油位,不得低于下限。
PY弹簧圆锥破的操作与维护
- 岗位操作人员必须严格遵守破碎机的启动和停车程序等规定的标准操作规程。开车前必须认真检查破碎腔内是否有矿石或异物;检查各电气连锁装置和信号是否正确好用;检查油箱中油温和油位的情况,若油温低于20 ℃不宜开车,此时用电热器将油加热至20 ℃ 后方可开车,油位要在规定的上下限之间;开动油泵,待油压为0.05~0.15MPa,冷却水压力为0.025~0.08MPa,冷却水压力要稍低于油压,油泵运转3~5min 后,才能启动破碎机并给料。
- 经常检查稀油循环集中润滑站中油泵、过滤器、冷却器、阀门和管路的运行情况,以及稀油润滑系统的油压和油温。油泵存在故障时,及时进行检修或更换油泵;过滤器堵塞时,要及时进行清洗;油管被堵塞时,停机找出堵塞点,并消除之;冷却器漏水时,及时检查修理漏水部位或更换冷却器;进油管的阀门没有打开到合适位置时,要及时调整到合适为止;破碎机内的油路被堵塞时,停机找出堵塞点,并消除之;若球面轴承座或球面轴瓦上的回油槽堵塞时,应停机检查,清洗回油槽和回油管。
可能发生的故障和排除方法
改进大圆锥齿轮与偏心轴套的装配关系,使装配后PY2200弹簧圆锥破大圆锥齿轮的轴线离开偏心轴套的轴线向薄边偏2~2.3mm;PY1750弹簧圆锥破大圆锥齿轮的轴线离开偏心轴套的轴线向薄边偏1.5~1.8 mm。
圆锥破碎机-安装
圆锥破碎机的安装
-
必须安装在稳固的钢筋混凝土基础上,基础的深度根据当地的地质条件决定。在基础上部复盖护板,以免基础损坏。为避免破碎后的矿石堆积,基础下部须有足够的空间,安装运输设备。
-
安装时要在固定接触表面上涂以干油,在活动表面涂以稀油。
-
安装机架时应保持严格的垂直性和水平性,可在底座的环形加工面上用水平仪及悬锤检查底座的中心线。用调整楔铁调整好底座的水平后,将地脚螺钉拧紧,进行第二次灌桨。当二次灌桨层硬化后,从底座下取出调整楔铁,并用水泥充填空隙,然后安装机架。
-
安装传动轴时应在底座与传动轴架的凸缘间垫上调整垫片。传动轴装入后,用样板检查与传动齿轮有关的尺寸。传动齿轮轴移动量应为0.4-0.6mm。
圆锥破碎机碗形轴承的安装
安装碗形轴承时,注意不使钢丝绳碰坏挡油环(可用硬木等物支持在钢丝绳之间)。装配时,支承球面应进行刮研,保障破碎圆锥与碗形互球面在外圆接触内环应确保0.35-0.5mm的环状间隙。碗形轴瓦要用周围灌注的巴化合金的锁钉固定在碗形轴承架上的,防止碗形轴瓦沿圆周方何转动。碗形轴承架与架体用键(销)固定好,如果工作中发现碗形轴承架与架体有间隙必须立即进行处理。
圆锥破碎机-润滑
圆锥破润滑系统工作常识
-
只有在润滑系统运行、且润滑油回流储油箱后,才可以起动圆锥式破碎机;
-
不论是夏天还是冬天,都应运行圆锥式破碎机使润滑油升温,回油温度必须在39 ℃~54 ℃;冷却系统将使油温始终保持在安全操作范围内。因此,必须使用合适类型的润滑油,以保障破碎机的良好运行;
-
在滤清器初次投入运行前,应对其进行液体渗漏试验;打开或关闭阀门控制通过滤清器的润滑油流量时,应小心防止润滑系统管线出现液击,为保障滤清器工作效率,当滤清器进出口压差达到138 kPa时,必须更换滤芯;
-
冬季停车时应排尽冷却器中的水;
-
切勿断开诸如电阻式温度探测器和压力变送器等的报警装置电源;
-
在拆解润滑泵装置之前,必须泄去泵内全部压力。
圆锥破润滑装置的改造方案
-
改齿轮油泵为离心泵。圆锥破原润滑装置的齿轮油泵是容积式液压泵,是依靠内部密封容积的变化进行工作的。如果密封因磨损而失效,将引起输出油流的减少,引起润滑不良。离心泵是依靠油液的离心运动产生的压力来工作的,它的内部不易磨损,即使磨损了也对输出油流影响不大。所以,用离心泵取代齿轮泵可以使密封装置的输出油液更稳定。
-
改单机分散润滑为双机分组润滑。圆锥破原润滑装置每台主机配置1台,属于单机分散润滑。现改为1台润滑装置供2台主机同时使用,即为双机分组润滑。这样改,可使润滑装置减少原来的一半,可靠性相对提高,平时的维护工作量大幅度降低。
-
改上油过滤上油冷却为回油过滤和回油冷却。这样改进,使得圆锥破润滑装置的压力损失减少,泵能在轻载下稳定地工作,延长泵的使用寿命。同时也使得润滑装置的结构简单化,性能也更为可靠。
液压弹簧圆锥破的润滑管理
-
根据季节气候的不同,选择不同润滑油。在炎热的夏季,选用粘度较高的4 6 #机械油;在寒冷的冬季,选用粘度较低的3 2 #机械油;
-
供油压力一般控制在0.08~0.2 MPa。供油压力如果过小,润滑油会因动力不足而达不到相应的润滑部位,起不到润滑作用。如果油压过大,就会把偏心套向上顶起,使得大齿轮顶部与碗形瓦座底部接触而引起相互磨损,严重的可带起直衬套,引起直衬套破裂;
-
为了保障液压弹簧圆锥破在运转过程中得到充分的润滑,润滑系统与圆锥破采用电气联锁。机器开动前必须先开油泵,否则电动机启动不了,当油泵停止或油压降低到0.05 MPa时,均发出信号,停止电机运行,以保障机件不受破坏;
-
由于运转中机件磨损产生的残渣及少量灰尘的进入,至使润滑油慢慢变脏,油质变坏,为此,应对稀油站定时清洗,3~4个月换油一次,另外还应备有备用油箱,对换下的脏油进行澄清,以备下次换油之用;
-
润滑油中如果含有的灰分和水分过多,会大大降低润滑效果,影响机件的寿命和机器的工作性能。为了防止灰尘进入,液压弹簧圆锥破设有水封防尘装置,通过碗形挡尘圈的自由端插在环形水沟中,用它将灰尘挡入水中并随水排出,在排水沟的外侧还装有一层防尘橡皮圈,它与碗形挡尘圈接触起到隔离粉尘的作用。为了防止防尘水沿碗形瓦座的周边流入润滑系统,除了严格控制给水量之外,还在瓦座的周边加焊一圈向下倾斜的隔水板,这样从环形水沟溢出来的水就被隔水板挡到机体外面,随矿石排出。
可能发生的故障和排除方法
排矿口调节问题
圆锥破碎机在更换新衬板初期,排矿口可达到设定值13 mm左右;但衬板磨损到一定程度后,排矿口扩大到18 mm左右,无法再往下调节;当衬板磨损到后期时,排矿口达到20 mm左右,基本上起不到破碎效果。为此,采取了将偏心距由原50 mm调整到40 mm的措施。采取该措施后,虽然破碎机的通过量有所减少,但能使排矿口基本保持在13 mm左右,有利于增加排矿中的合格粒级,减少回笼矿。
上罩壳和下罩壳紧固松动
圆锥破碎机上、下罩壳之间通过台阶紧密配合后再用20根螺栓联接,但运行过程中出现螺栓松动及断裂现象。为此,采取了如下措施:
-
将机座设计为弹性机构,来缓冲设备内部破碎力;
-
采用力矩扳手,保障每一个螺栓必须达到3640 N·m的紧固力矩;
-
通过对上、下罩壳之间联接台阶的加垫或修复,保障两者配合间隙在0. 25 mm范围以内。
防尘问题
圆锥破碎机防尘系统的外置风机由于受外界环境影响,滤芯堵塞严重,且无法直接观察风力,常因不能及时更换滤芯而造成风压小,防尘效果差,润滑油更换频繁等问题;若定期更换滤芯又造成不必要的浪费。为此,拟在防尘风口上增设压力控制阀,以便及时更换滤芯及有效控制风压。
圆锥破噎铁
-
当圆锥破出现噎铁故障时,推荐采用液压清腔系统,提高故障排除的安全系数。
-
首先开启液压电磁阀,使液压缸反向供油,液压缸在油压作用下被升起并通过活塞杆下部的螺帽端面顶起支撑套。
-
随着支撑套的不断抬起,圆锥破破碎腔内空间逐步增大,卡滞在破碎腔内的铁块会在重力作用下逐渐滑落,从破碎腔内排出。
-
若进入破碎腔的铁块过大不可通过液压作用排出时,就要使用割枪对铁矿进行切割。
-
整个操作过程,操作人员不可将身体的任何部位进入破碎腔或其他可能会突然移动的零部件内部,以保障操作的安全性。
新型圆锥破监控措施
-
加强巡检力度,严格按安全操作规程进行操作。在新型圆锥碎石机运行中对油温、电流、给矿状况进行不间断观察,油温不得超过50℃,电流不得超过80 A,矿石必须在分配盘的中间给入,如发现异常必须及时修理;
-
严格控制粒度调节,粒度控制在5~13 mm,禁止破碎壁与轨臼壁发生碰撞;
-
采取必要措施防止铁件等不可破碎的物体进入破碎腔,而使主轴载荷急剧增加引发事故。为此,在运输皮带上安装除铁装置,并在每次检修完工后对流程进行清理,以防铁件进入腔体;
-
定时观察衬板的磨损情况,禁止衬板因过磨而脱落下来,卡在破碎腔里使机器受损。
液压弹簧圆锥破预防
-
维修人员检修液压弹簧圆锥破时,严格遵守操作规程,避免将维修工具及杂物遗留在液压弹簧圆锥破内。
-
通过考察和技术革新改造,在尽量满足工艺条件以及充分考虑性价比的前提下,选择能够比较容易被金属探测仪排除的材料制成的斗齿
-
看守液压弹簧圆锥破进料胶带的操作工要加强责任心,增加对物料的巡视力度,发现异物要及时拣出。
-
液压弹簧圆锥破操作工对设备巡查及时到位,发现电流、声音等异常情况要及时处理、汇报,防止事故扩大。
-
定期利用超声波等仪器对液压弹簧圆锥破主轴等受力部件进行探伤,以了解目前设备的实际状况。
-
加强对各工段操作工的培训,努力提高操作工实际操作水平,强化液压弹簧圆锥破的维护保养,对设备的大、中修做到及时到位,确保设备处于良好的技术状态。
-
对于主轴、躯体及其它能够影响整个系统生产的重点设备部件,做好其库存备件的采购工作,以免出现特殊情况后造成整个系统停产,造成不可挽回的损失。
减小短头圆锥破负荷
-
减小冲击负荷对短头圆锥破碎机的影响。主要措施为:
(1)改进进料口结构,达到均匀布矿,锁紧缸油封用耐磨异型聚胺酯油封;
(2)及时检查加固各部衬板及零部件,加强检查,防止非破碎物进入短头圆锥破碎机;
(3)在更换新衬板时,适当加大排矿口间隙,对衬板磨合2~3天以消除其偏心或椭圆;
-
适当减小生产负荷对短头圆锥破碎机的影响。通过合理设置排矿口间隙,依据矿石性质及时调整进矿量的办法,减小生产负荷,使短头圆锥破碎机的电流维持在210~230 A 之间。
圆锥破无油流油压低
圆锥破碎机采用稀油循环集中润滑站,由润滑油站供给的低压润滑油,低压润滑系统主要由立式低压齿轮泵组、油箱组件、滤油器组件、冷却器、安全阀、阀门和管路等组成。圆锥破碎机润滑系统出现油流指示器内没有油流,油泵运转,但油压低于0.05MPa的情况,主要有以下原因:
-
圆锥破碎机开车前,若油箱中油温低于20℃时且不加热油,则开动润滑油泵时会出现润滑系统中油流指示器内没有油流,油泵运转,但油压低于0.05MPa的情况,这种情况在冬季尤为突出;
-
在开动圆锥破碎机的润滑油泵时,如果润滑系统中进油管的阀门没有及时打开到合适位置,那么也会出现油流指示器内没有油流,油泵运转,但油压低于0.05 MPa的情况;
-
当润滑油泵自身存在故障时,亦会出现在润滑系统中油流指示器内没有油流,油泵运转,但油压低于0.05 MPa的情况。
液压圆锥破油中有水
液压圆锥破碎机油中有水,油箱中油位增高。
-
冷却器中的水压高于油压 液压圆锥破碎机运转中稀油润滑系统的正常工作油压为0.05~0.15MPa,稀油润滑系统的冷却水压力一般为0.025~0.08 MPa。当稀油润滑系统出现故障时,致使工作油压偏低,若工作油压低于冷却水压力,则造成冷却水从冷却器中进入被冷却的润滑油里,从而导致油中有水,油箱中油位增高;
-
冷却器漏水 当冷却器出现漏水情况时,会出现冷却水从冷却器中进入被冷却的润滑油里,造成液压圆锥破碎机油箱中油位增高;
-
水封给水量太大 若水封给水量太大,造成防尘水不能够及时从排水管排出机外,从而导致油中有水,液压圆锥破碎机油箱中油位增高;
-
回水管堵塞 当回水管被堵塞时,造成防尘水不能及时排出机外,导致油中有水,液压圆锥破碎机油箱中油位增高。
圆锥破砼基大振事故
-
将圆锥破碎机900整体吊离基础,空出处理地脚螺栓和溜槽的空间。
-
将地脚螺栓断头按规范接好,恢复其使用功能。把溜槽口用槽钢和钢板补修好,保障工作时,破碎好的物料不至冲刷硷基础,同时保护地脚螺栓不外露。
-
在接地脚螺栓的同时,开挖大块砼基础周围地坑,坑深1.5m,以挖到老土为准。
-
将原大块砼侧面凿毛,洗净,钉好模板,再将砼浇下。
-
将圆锥破碎机900安装平面修平。
-
砼浇下两天后安装圆锥破碎机900,安装时垫铁应按规范布置,垫高为30-50mm。
-
继续修整安装就位后的圆锥破碎机900,借处理大块砼基础停车期间检修破碎机。
-
砼浇下满72小时进行空车调试圆锥破碎机900,然后带负荷试车。
日常维护须知
圆锥破液压系统的保养秘诀:
圆锥破液压系统的保养秘诀,关键是要保持液压缸和液压油的清洁,液压缸要采用封闭式的装置,一定要按照圆锥式破碎机液压系统的要求选择合适的液压油,如有特殊情况需要用别的液压油替代时,要选择最接近液压系统要求的液压油,而且不能与其他不同牌号的液压油混合添加。在向液压系统中添加液压油时,必须用洁净的滤油器严格过滤后,再加入液压缸内,添加的油量要充满系统管路和机器元件,并保持在油标规定的范围之内,液压系统的管路和元件要在添加液压油之前的清洗干净。在运行的过程中,定期检查液压油的质量,防止水分的溅入或者粉尘和纤维杂物的进入,时刻保持液压油的清洁,这样才能使液压系统处于良好的工作状态。
其他类
圆锥破防尘改进
圆锥破碎机水封防尘装置的改进
由于圆锥破碎机的破碎锥具有较高的摆动次数和较大的摆动行程, 加上产品颗粒细, 粉尘浓度高, 从而使粉尘很容易进入圆锥破碎机的润滑系统, 造成润滑油污染, 油泵更换频繁, 轴、直铜套、锥套经常磨损直至被烧坏。
圆锥破碎机防尘装置原设计是水封防尘, 靠碗形轴承座上的环形给水槽和焊在驱体下端的球形圈。球形圈插入环形水槽中, 水封水由进水管流入水槽, 待流满给水槽后溢流至外部环形排水槽, 从而使带粉尘的回水经排水管流出机外。由于密封水位有限, 球形圈不可能插入较深的水中, 在破碎锥的摆动下, 一部分球形圈脱离水面, 致使一部分小颗粒的粉尘通过碗形轴承进入润滑系统, 加之生产中使用水质差, 管路又易堵塞或碰坏, 常常无防尘水, 从而使油质变坏。 为解决这个问题, 首先在进入机体的水管上加防护板,避免管路碰坏。同时在水封的基础上增加了厚度为8~10mm的工业羊毛毡, 形成两道防尘装置, 由此在水封防尘装置中, 大部分粗粒粉尘已落入水中, 一部分细粒粉尘飞起进入此处, 被毛毡挡住, 从而阻止粉尘进入润滑系统中。
新型圆锥破壁的更换
新型圆锥破碎机破碎壁和轧臼壁的更换。
-
破碎壁的更换
圆锥破碎机的破碎壁是用圆锥头固定在圆锥躯体上的,二者之间浇铸有锌合金。新安装或新更换的圆锥破碎壁工作6-8小时后,应检查其紧固情况,发现松动应立即紧固。
-
轧臼壁的更换
圆锥破碎机的轧臼壁用U形螺钉固定在调整环上,二者之间注入锌合金,使之紧密结合。新安装或更换的轧臼壁,在工作6-8小时后,应检查其紧固情况,并再次拧紧U形螺钉。
更换圆锥破动锥衬板
更换圆锥破碎机的动锥衬板注意事项
-
吊出偏心套,对圆锥破碎机的直形衬套和锥形衬套磨损的部分进行研磨,以保障摩擦表面的光洁度;
-
以前对直形衬套的周向固定是靠热注锌合金固定,但这种固定方法并不牢靠,圆锥破碎机的在运行过程中经常发出轴套转动并向上提起的现象,严重时可导致衬套由于受力状况而破裂。针对这种情况,改热注锌合金固定为紧固螺钉固定,在衬套与机架的结合处均布4螺纹孔,然后拧入4只沉头螺钉,这样可避免衬套转动并爬行现象;
-
安装碗形轴承架时,注意与机架配合要紧密,不得出现摇摆现象;
-
动锥自转速度严格控制在8~14 r/min 。动锥转速过低或过高都会影响圆锥破碎机的生产率,另外如果转速过高,说明某个运动副的摩擦力相对较大,这对油温将产生较大影响;
-
对换下的碗形瓦支承球面进行刮研,保障破碎圆锥球面与碗形瓦在外圆的接触长度在84~140 mm之间,每2~5 mm 2面积上不得少于1个接触点,并沿内圆周保持0.5~1 mm的楔形间隙,以保障破碎圆锥球面与碗形瓦内圆不相互接触。